trabajo
Contacto
trabajo
Contacto
Fernando Peon

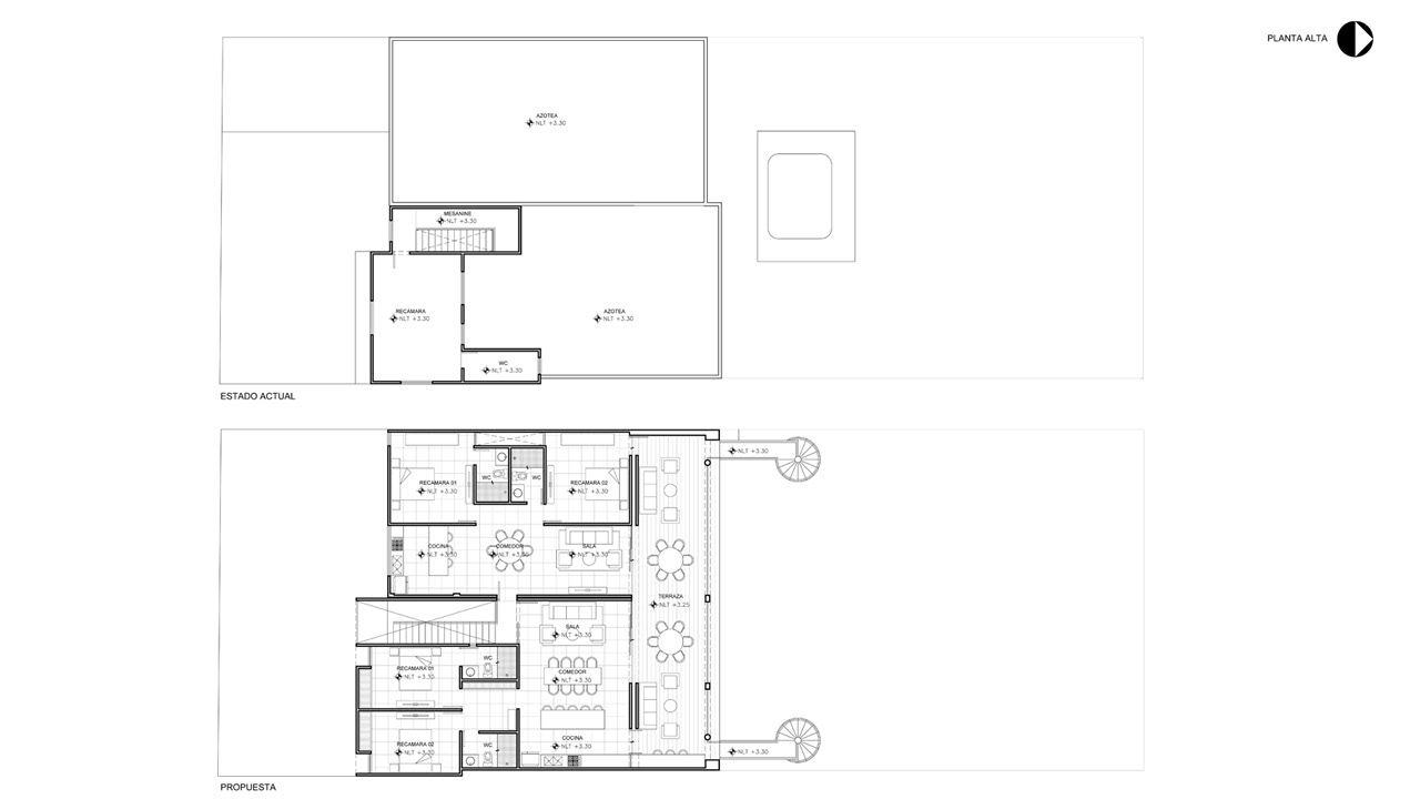
REMODELACIÓN PROGRESO

You may also like

CAMPESTRE
2021
REMODELACIÓN MONTES DE AMÉ
2020
JARDÍN DZITYA
2013
RESIDENCIA CHOLUL
2016
TEMOZÓN
2021
MERCADO 59
2015
TH MONTEBELLO
2019
DEPARTAMENTOS MAYAB
2013
MONTES DE AMÉ
2015
CASA FERNANDEZ
2020
↑Back to Top
mérida , yucatán, méxico